PROJELER
HAKKIMIZDA
HABERLER
İLETİŞİM
PROJELER
HAKKIMIZDA
HABERLER
İLETİŞİM
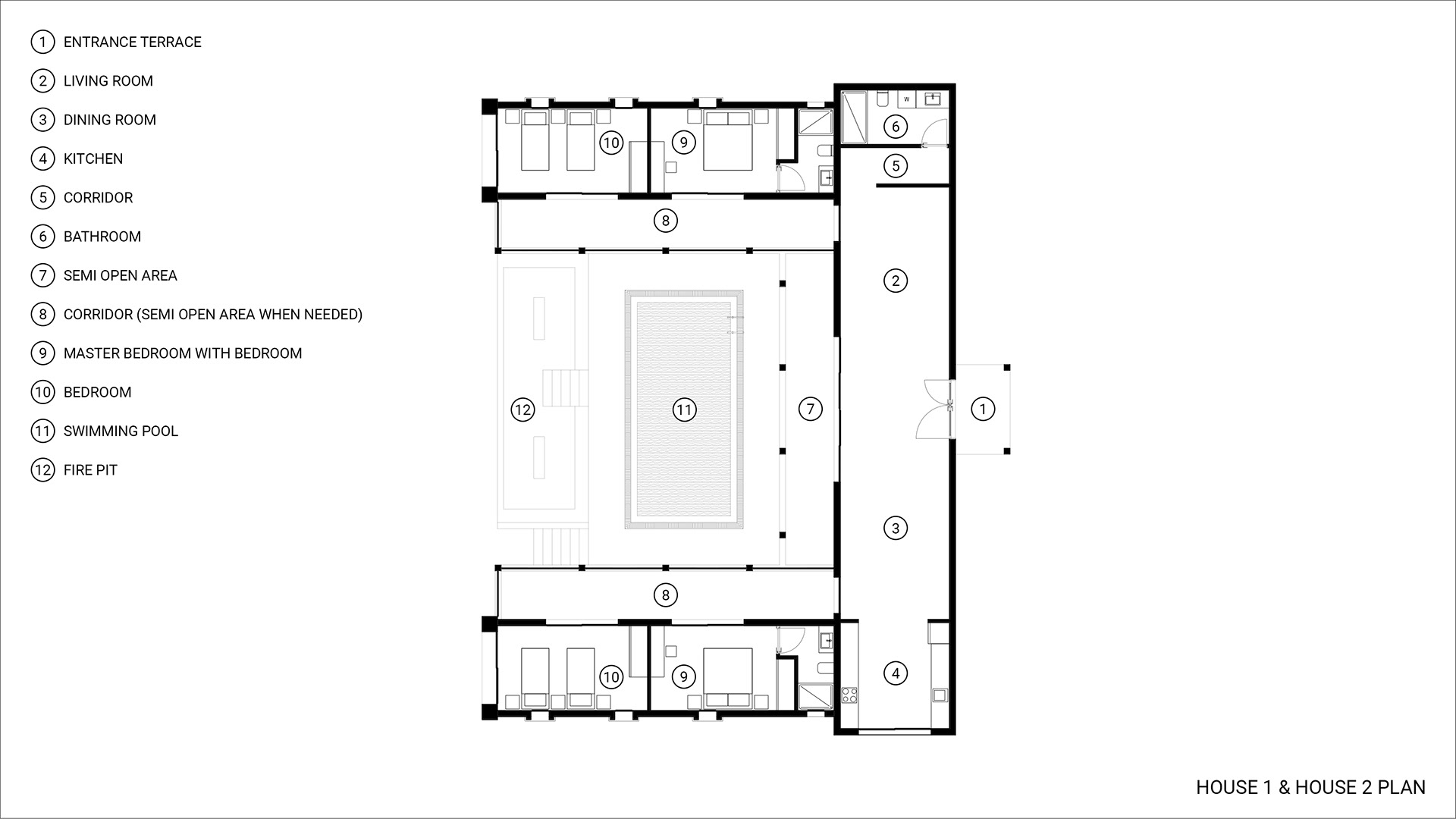
Kiralanabilir Dağ Evleri
Proje Türü: Konut - Lokasyon: Plitvice, Hırvatistan - Proje Tarihi: 2024 - Alan: 500 m²
Kiralanabilir Dağ Evleri
You may also like
Endüstriyel Tesis
2024
Döviz Bürosu
2025
Dolomitler Otel Odası
2024
Şile Villaları
2024
Otel İç Mekan
2025
A.T. Berber Dükkanı
2024
Hamburger Restoranı
2025
Otel Resepsiyon Alanı
2025
↑
Back to Top